Work
Contact
Work
Contact
Eliott Henry

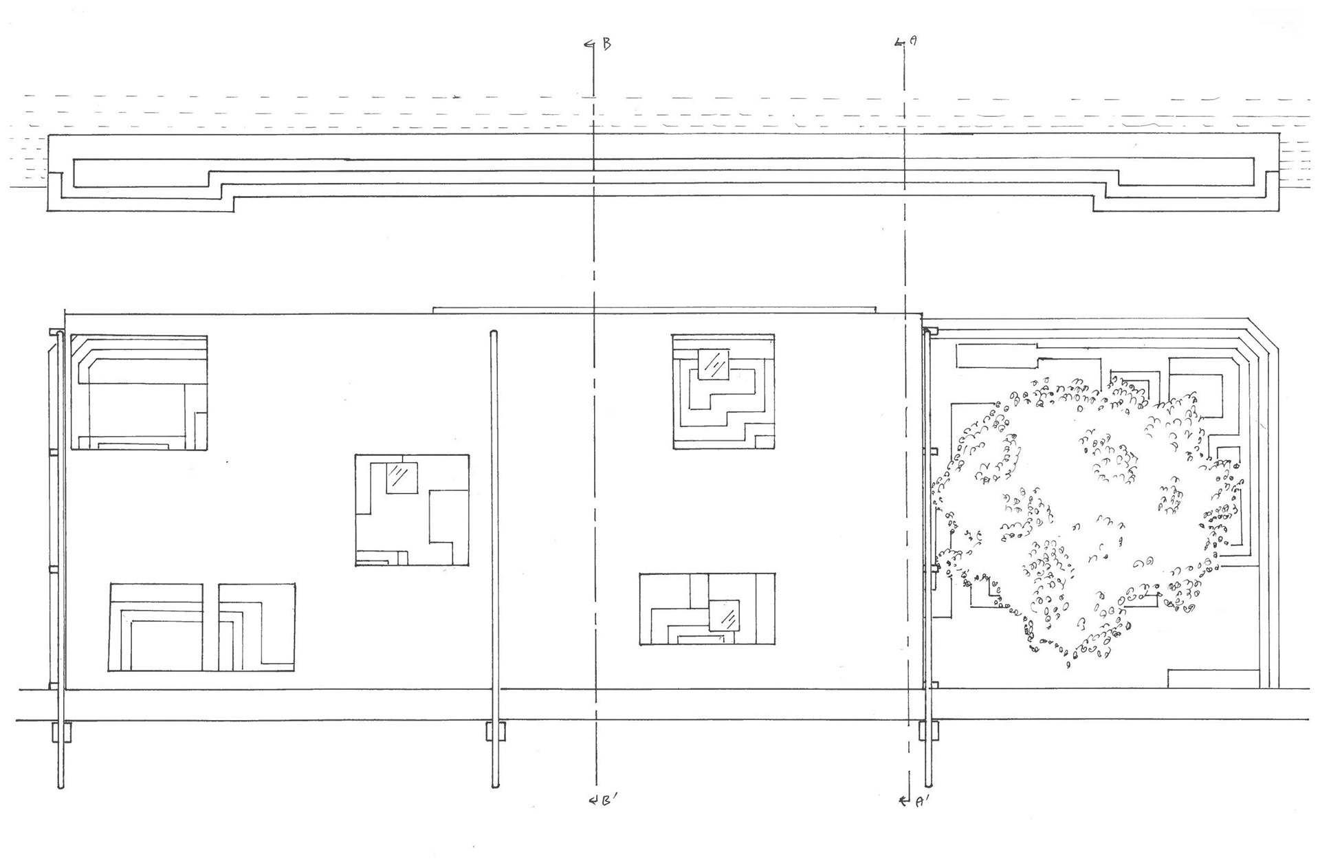
Dénivelé évolutif

You may also like

banquette miroir
2024
accumulation et transparence
2024
déconstruction souple
2024
Interstice
2024
Porosité Chaleureuse
2024
↑Back to Top
Contact : eliottdu21@outlouk.fr